Оренда приміщення клініки 595м² з готовою ліцензією на Василенка, 7 (№ 15-109-544)
Ціна: 8 925 $ + комунальні

Характеристики
| Ціна: | 8 925 $ + комунальні |
|---|---|
| № об'єкта: | 15-109-544 |
| Тип: | об'єкт сфери послуг, інше |
| Поверх: | 1 / 5 |
| Площа: | 595 м2 |
| Ціна м² (грн.): | 15 |
| Стеля, м: | 3 |
| кВт: | 100 |
| Додатково: | окремий вхід, кондиціонер, парковка |
Адреса: Київ, Солом'янський, Миколи Василенка вул., 7, м. Берестейська
Двоповерхове фасадне приміщення з окремим виходом на перехрестя вулиць Василенка та Матущака.
Ідеально підходить для медичного багатофункціонального закладу.
8 парко місць для автівок перед входом у клініку.
Загальна площа: 595м² (два поверхи)
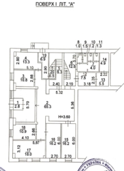
Перший поверх:
Адміністративна зона
Рецепція
Санвузли
Кабінети для персоналу (бухгалтерія, архів, кабінет проктолога, кабінет УЗД)
Невелика їдальня з мийкою
Пандус для доступу.
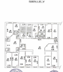
Другий поверх:
Зона для стаціонарних пацієнтів (2 палати на 4 койки, зона відпочинку, 2 маніпуляційні)
Кабінети для спеціалістів (гінекологія, масаж)
Адміністративні приміщення
Можливість облаштування операційної (комунікації вже підведені)
Особливості:
Готова медична ліцензія для першого і другого поверхів.
Якісний ремонт у зоні стаціонару.
Інші приміщення можна адаптувати під потреби орендаря.
Усі комунікації підведені.
Локація:
Василенка, 7, зручний доступ та помітність з основних транспортних маршрутів.
Місця для паркування поруч з будівлею.
Ідеально підходить для клініки, центру реабілітації чи приватної лікарні.
Ціна оренди 15у.о./кв.м. Окремо комунальні.
Відео огляд за запитом.



















