Продаж орендного торгівельного бізнесу зі швидкою окупністю. Фасад, вітрини (№ 2-495-758)
Ціна: 1 350 000 $

Адреса: Костянтина Заслонова вулиця, 13а, Київ, Дніпровський
Характеристики
| Ціна: | 1 350 000 $ |
|---|---|
| № об'єкта: | 2-495-758 |
| Тип: | торгівельні площі, об'єкт сфери послуг, інше |
| Поверх: | 1 / 5 |
| Площа: | 604 м2 |
| Ціна $/м²: | 2235 |
| Стеля, м: | 2,8 |
| кВт: | 110 |
| Кабінетів / залів: | 10 |
| Додатково: | окремий вхід, парковка |
Опис
Продаж орендного бізнесу з окупністю 9 років.
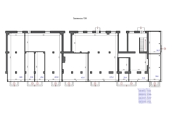
Фасадне торгівельне приміщення після реконструкції. Нове планування приміщення додане у галерею з фото.
1 поверх з вітринними вікнами, загальна площа 603,5 кв.м. повністю заселено трьома орендарями, сплачують оренду вчасно, розмір оренди вказано нижче.
Орендар на вибір:
- Супермаркет ДЕЛВІ (зараз працює там) - 80м2 - 98000 грн.
- Аптека, 63м2 - 58000грн/м3
- зоомагазин – 25м2 – 25000грн.
- піца, 30м2 - у процесі узгодження
- Аврора, 170м2 – 70000грн/міс.
- вода, 26.5м2 - 15000грн/міс.
З усіма існуючими орендарями укладено договори на 3 роки з індексацією та пролонгацією.
Активний трафік людей та авто, щільно заселений район. Поруч великий ринок, Залізничний вокзал Дарниця.
У підвалі маємо приміщення під склад 50м2. Маємо Бомбосховище у підвалі понад 300м2.
Ціна $1'350'000. Готові розглянути зустрічні пропозиції.



















