Клубний будинок не подалік Золотих Воріт, студія зі спальнею. (№ 212-987-493)

Ціна: 135 000 $
Характеристики
| Ціна: | 135 000 $ |
|---|---|
| № об'єкта: | 212-987-493 |
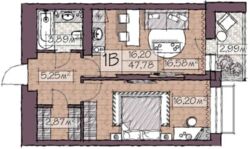
| Кімнат: | 1 см/рз, студія |
| Поверх: | 10 / 16 ліфт |
| Площа: | 48 / 16,6 / 16 м2 |
| Санвузол: | 1 сумісний |
| Балкон: | балкон |
| грн / кв.м.: | |
| Стеля, м: | |
| кВт: | |
| Додатково: | новобудова |
Адреса: Київ, Шевченківський, Кудрявська вул., 45, м. Золоті ворота
Продаж квартири 48м² в бізнес класі ЖК Конкордія.
Розташована на десятому поверсі з 16-ти
Київ Шевченківський район Вул. Кудрявська 45 Клубний будинок бізнес класу Concordia Club Apartments 48,3 м. кв. 10/16 пов.
В будинку всього 69 квартир, підземний паркінг на 16 авто.
Ціна $135000.
Вид об'єкту: Новобудова;
Тип будинку: Житловий фонд 2020р. забудова
Назва ЖК: Конкордія;
Тип стін: Монолітний; утеплення мінвата,
Клас житла: Бізнес;
Планування: Вільне планування;
Cанвузол: Суміжний;
Опалення: Власна котельня;
Ремонт: Під чистову обробку;
















