Готовий для роботи офіс 53кв.м. у БЦ, ст.м. Лівобережна 2хв. Генератор на весь БЦ (№ 1-494-390)
Ціна: 21 200 грн. + комунальні

Адреса: Раїси Окіпної вулиця, 2, Київ, Дніпровський, м. Лівобережна
Характеристики
| Ціна: | 21 200 грн. + комунальні |
|---|---|
| № об'єкта: | 1-494-390 |
| Тип: | бізнес центр |
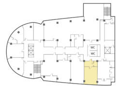
| Площа: | 53 м2 |
| Кабінетів: | 1 |
| Поверх: | 5 / 8 |
| Ціна грн/кв.м.: | 400 |
| Ціна Total $ за 1м² : | |
| Орендна ставка $ за 1м²: | |
| Висота стелі, м: | |
| Додатково: | кондиціонер, парковка |
Опис
Друга категорія електрозабезпечення, дві лінії. Генератор потужний, вистачає на довгі години відключень світла на весь БЦ.
Офісне приміщення 53 кв.м. на 5-му поверсі у Бізнес центрі класу В+.
Система кондиціювання: Центральна. Система вентиляції приточно-витяжна.
Планування open space, зона рецепції, приміщення кухні.
Стан приміщення: з ремонтом, без меблів, стеля - підвісна 'Армстронг', стіни - гіпсокартоні, пофарбовані, підлога - ковролін
Строк оренди від 12 до 35 місяців. Пряма форма оренди
Вартість оренди 400грн кв.м. Окремо комунальні.




















